欢迎光临 金彩汇 ! 服务热线:13806866554
新闻资讯 News Center

母线槽的防水性与结露对策

发布时间:2020-11-11 08:31:56 | 点击:3724   

防火封堵板材

        建筑物墙体和楼板在设计时不可避免的要留出孔洞用以允许电缆、管道等贯穿物穿过,这破坏了作为防火分隔构件的墙体和楼板的耐火极限。这些孔口如果不能有效地进行防火封堵,首先是防火分区失去了完整性和有效性,其次,火灾中,这些孔洞将成为火焰、烟雾和有毒气体的通道,造成巨大的财产损失和人员伤亡。

        这种防火封堵板材由至少两层矿棉板和至少一层钢丝网层压而成,上下表面层为矿棉板,矿棉板表面涂敷至少0.1mm厚防火涂层。在使用时,这种防火封堵板材可以切割成任意形状以适合于各种孔洞尺寸和贯穿物的防火封堵。施工时配合用以粘结和密封胶的防火密封胶,从而达到优异的气密性和烟密性。

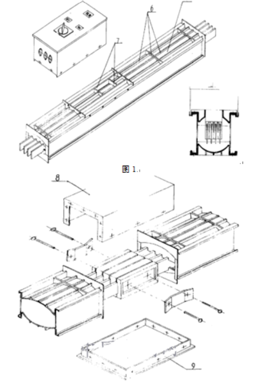
防水型母线槽

        我国现有的母线槽主要有密集绝缘母线槽和高强封闭母线槽两种,这两种母线槽都被广泛应用于各行各业的配电线路之中。但这两种母线槽都无任何防水措施,当结露时或遭到淋水时,水极易浸入母线槽而造成短路,尤其是在接头处和插口处。

        通过对母线槽的改良设计,在母线槽的盖板、侧板连接处、插口处、接头处都设计防水结构,设置防水嵌件。如图1:利用插口处加强筋的凸起部分(7)和插接箱底部的凹槽相配合,以解决插口处的防水问题。如图2:用接头防水上罩(8)和接头防水底板(9)与母线槽相配合,已解决解决接头处的防水问题。


 防火分隔点设置

        1防火分隔点设置要求

        电缆竖井应依据实践方位状况设置防火分隔点,首要在以下方位进行设置:

        (1)不限电压等级,电缆竖井应在每一楼层处设置 1 道防火封堵层;

        (2)当电缆竖井高度较大时,竖井中心可每隔60-100m 设置 1 道防火封堵层。

        2防火封堵资料选用

        电缆竖井防火封堵资料首要包含:耐火隔板、防火包、柔性有机堵料、无机堵料、电缆备用孔通道、电缆备用孔盖、室外腻子粉、防火涂料、角铁、Φ12膨胀螺丝、电缆竖井图像编号牌。

        3  施工进程和办法

        (1)将电缆收拾规整,整理洁净封堵部位的建筑废物及杂物。

        (2)安顿好脚手架,在封堵部位、竖井内部安 装预埋件或在钢竖井内支撑承托耐火隔板支架,间隔不大于 400mm。

        (3)测量待封堵的竖井、电缆桥架、电缆实践标准,按现场实践形状切开耐火隔板,装置预留电缆备用孔通道,预留电缆数量一般以业首要求为宜,一起对大型竖井进行电缆封堵时,应在爬梯处预留人孔,标准为 800mm x 600mm 。

        (4)将耐火隔板固定在承托支架上,底部与预制板底面平齐,四周耐火隔板高度以预制板上、地面点上高300mm为准。

        (5)电缆周围选用有机堵料和无机堵料相结合进行封堵,防火包有必要无决裂,穿插错缝摆放密实规整。

        (6)按电缆直径固定标准和电缆备用孔通道尺 寸制造电缆竖井盖板,确保启闭方便。

        (7)在电缆竖井封堵层上下两端的电缆上涂刷厚度不小于lmm,长度为1500mm的防火涂料。

        (8)施工完成后,用防火健壮胶将电缆竖井图像编号牌粘贴在电缆竖井立面正中方位。

        4施工工艺标准

        电缆竖井图像编号牌应亮光耀眼、标准,电缆竖井封堵层周正健壮,涂料均匀亮光。


设置循环单调除湿设备

        该办法是将封堵板材内的空气经过单调设备进行循环流动,从而将板材内空气中的水分除去后再充入,构成闭式循环。这种办法最大的利益是可有用除湿,构成闭式循环。


        经过对防结露涂料施工技能、防火封堵板材施工技能、防水型母线槽施工技能、防火分隔点施工技能、循环单调除湿设备施工技能五个方面的研讨,清晰了防火板结露产生的原因,一起也从多个方面下降结露对桥架及母线槽的损害。在工程的实践使用中,能够依据现场的具体状况,再结合本篇论文中说到的办法,以此来对桥架及母线槽防火板结露进行处理。



金彩汇是国内专业生产母线槽软连接伸缩节密集型母线槽等系列产品